Pomezia vince un bando ministeriale per la messa in sicurezza e l’adeguamento sismico della scuola “Marone”.

Pomezia vince un bando per la messa in sicurezza e l’adeguamento sismico del plesso scolastico “Marone”. La scuola secondaria di primo grado si prepara ad un importante intervento. Il Comune ha ottenu...

A cura di Redazione
20 agosto 2021 11:28
Pomezia vince un bando ministeriale per la messa in sicurezza e l’adeguamento sismico della scuola “Marone”. -
Condividi

Pomezia vince un bando per la messa in sicurezza e l’adeguamento sismico del plesso scolastico “Marone”. La scuola secondaria di primo grado si prepara ad un importante intervento. Il Comune ha ottenuto un contributo dal Ministero dell’Istruzione, dell’Università e della Ricerca, per un importo complessivo di oltre 4 milioni di euro, di cui circa 400mila di cofinanziamento del Comune.

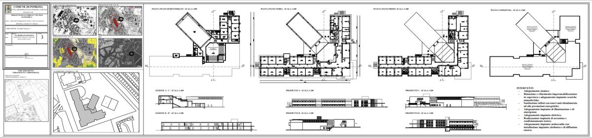
Il progetto prevede i seguenti interventi:

  • adeguamento sismico;
  • impermeabilizzazione in copertura e adeguamento impianto scariche atmosferiche;
  • sostituzione infissi con nuovi anti-sfondamento ad alte prestazioni energetiche;
  • adeguamento impianto di illuminazione e di emergenza;
  • adeguamento impianto elettrico;
  • realizzazione impianto di aerazione teatro;
  • adeguamento impianto antincendio compresa l’installazione impianto citofonico e di diffusione sonora.

“Una serie di interventi importanti – ha spiegato l’Assessora Federica Castagnacci – che saranno effettuati nel rispetto della struttura esistente e che ci consentiranno di assicurare una maggiore sicurezza ai nostri studenti, alle loro famiglie e a chi lavora nel campo della formazione; i lavori porteranno anche un significativo contenimento dei consumi energetici con un basso impatto ambientale”.

“L’edilizia scolastica e la sicurezza dei plessi sono dei temi per noi prioritari – ha commentato il Sindaco Adriano Zuccalà – Stiamo recuperando anni di mancati interventi, proseguendo nella riqualificazione del patrimonio scolastico di competenza comunale; il bando del Miur che abbiamo vinto permette all’Ente di svolgere i lavori necessari di messa in sicurezza e adeguamento sismico della scuola P.V. Marone, pesando in minima parte sul bilancio comunale”.